projects
open source
profile
play
text
contact
10@mont' kiara
mont' kiara, kuala lumpur
photos
plans
sketches
details
BBQ
CEMENT BLOCK WALL
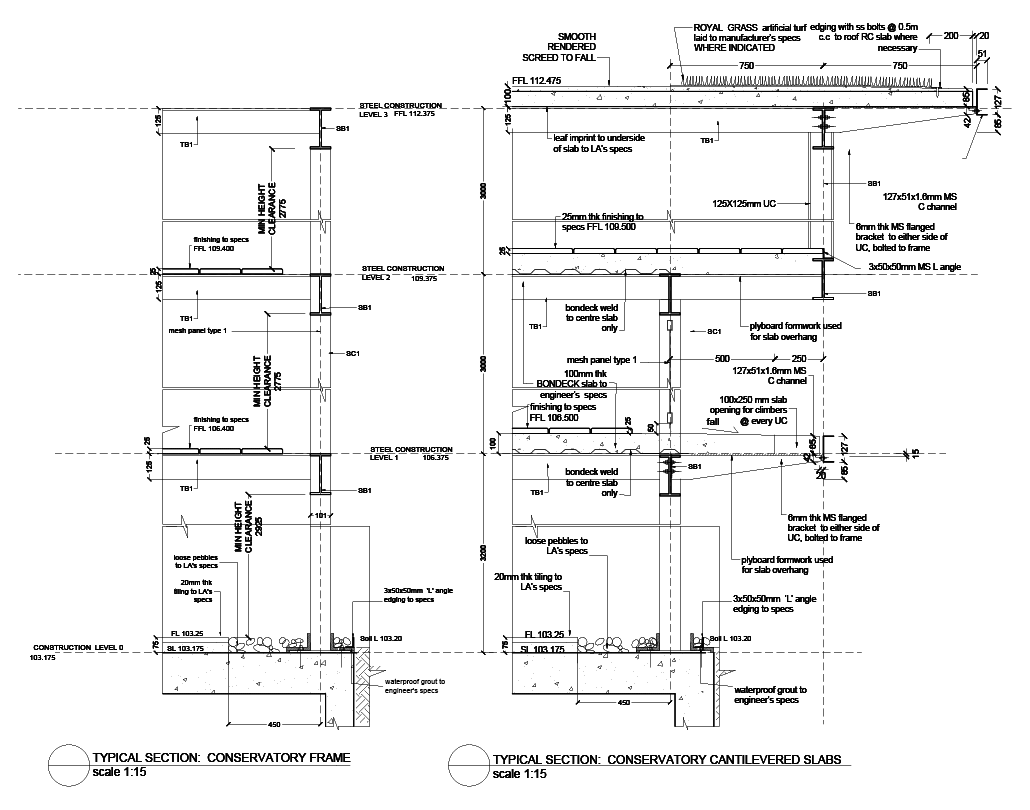
CONSERVATORY
CONSERVATORY
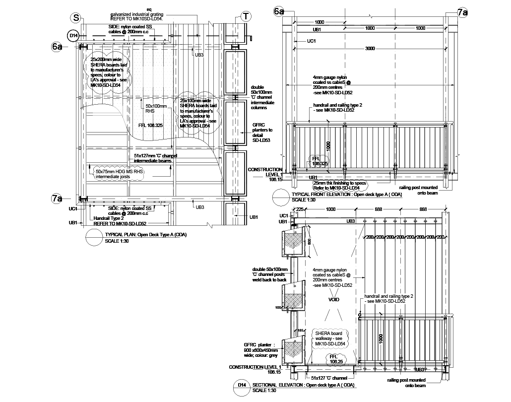
TIMBER DECK
FEATURE WALL
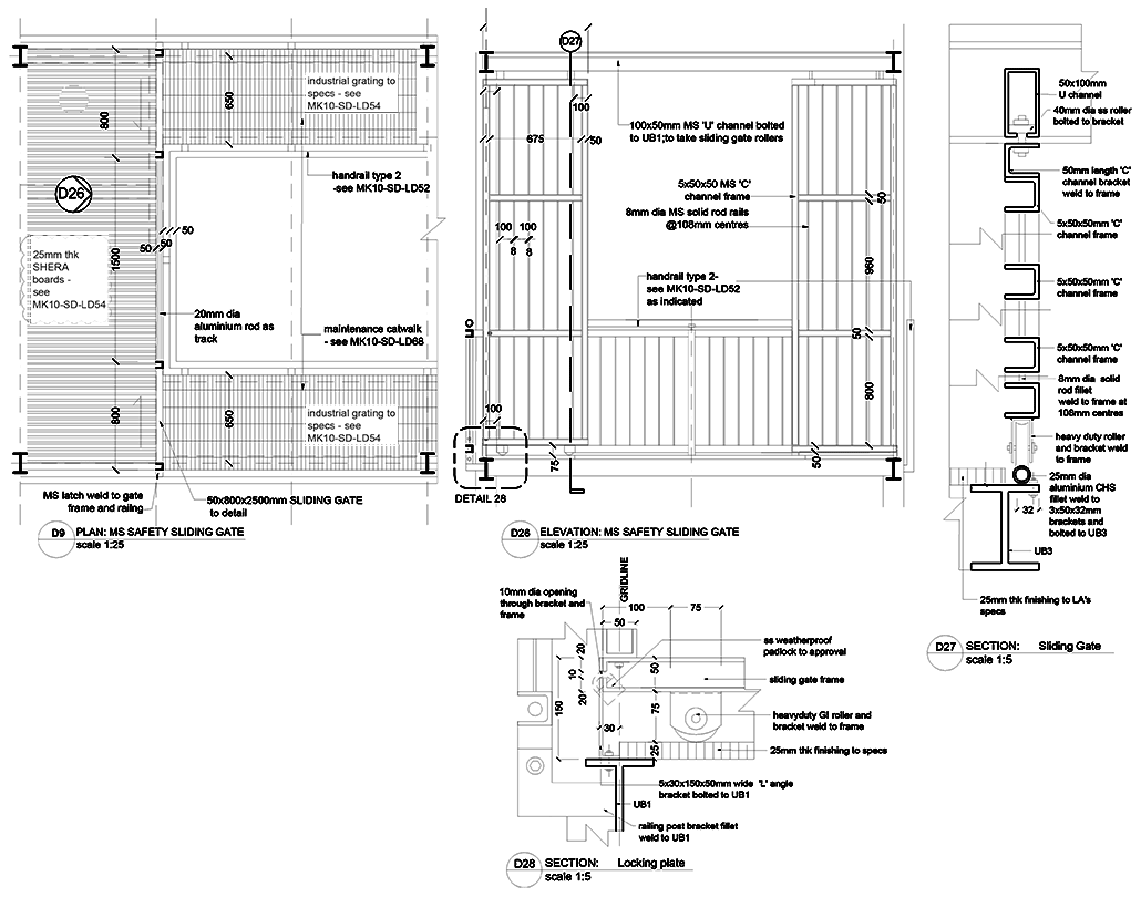
GATE
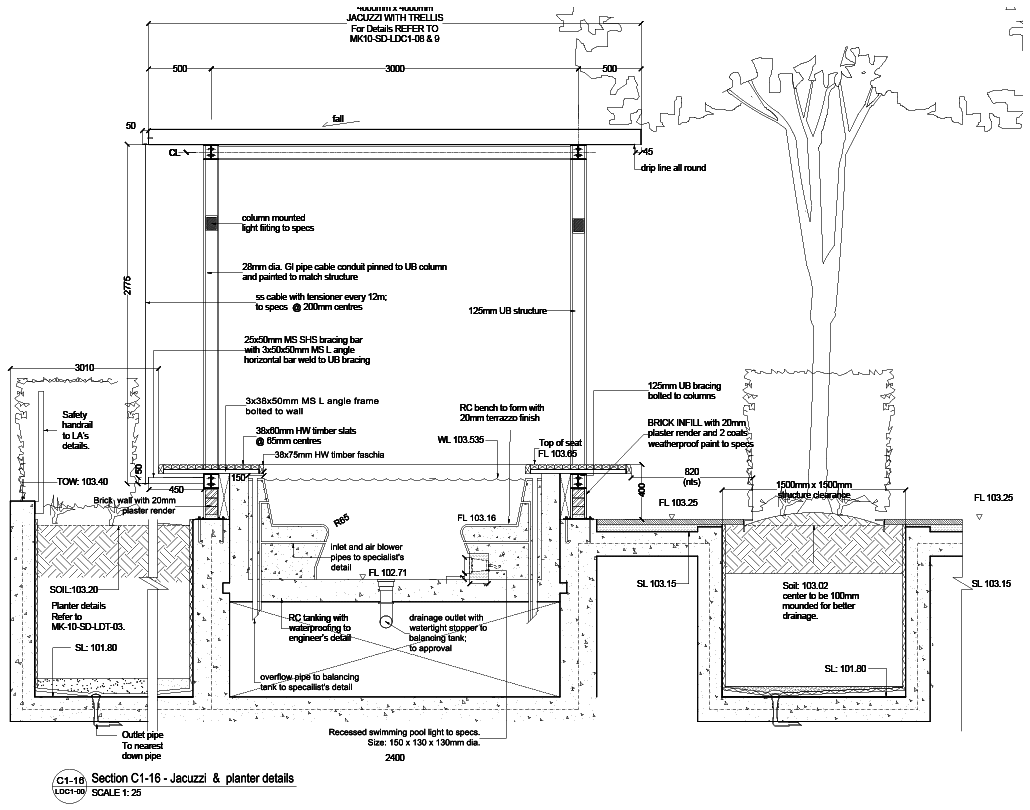
JACUZZI
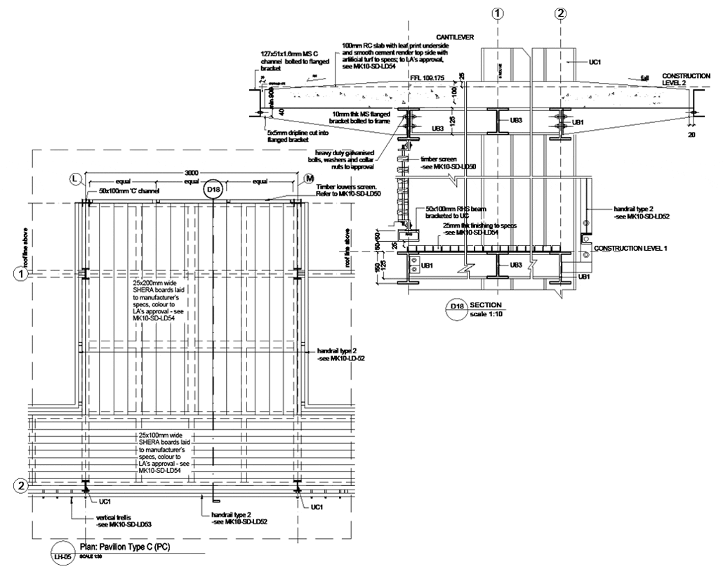
PAVILION
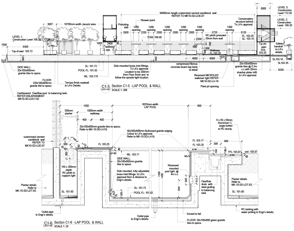
POOL
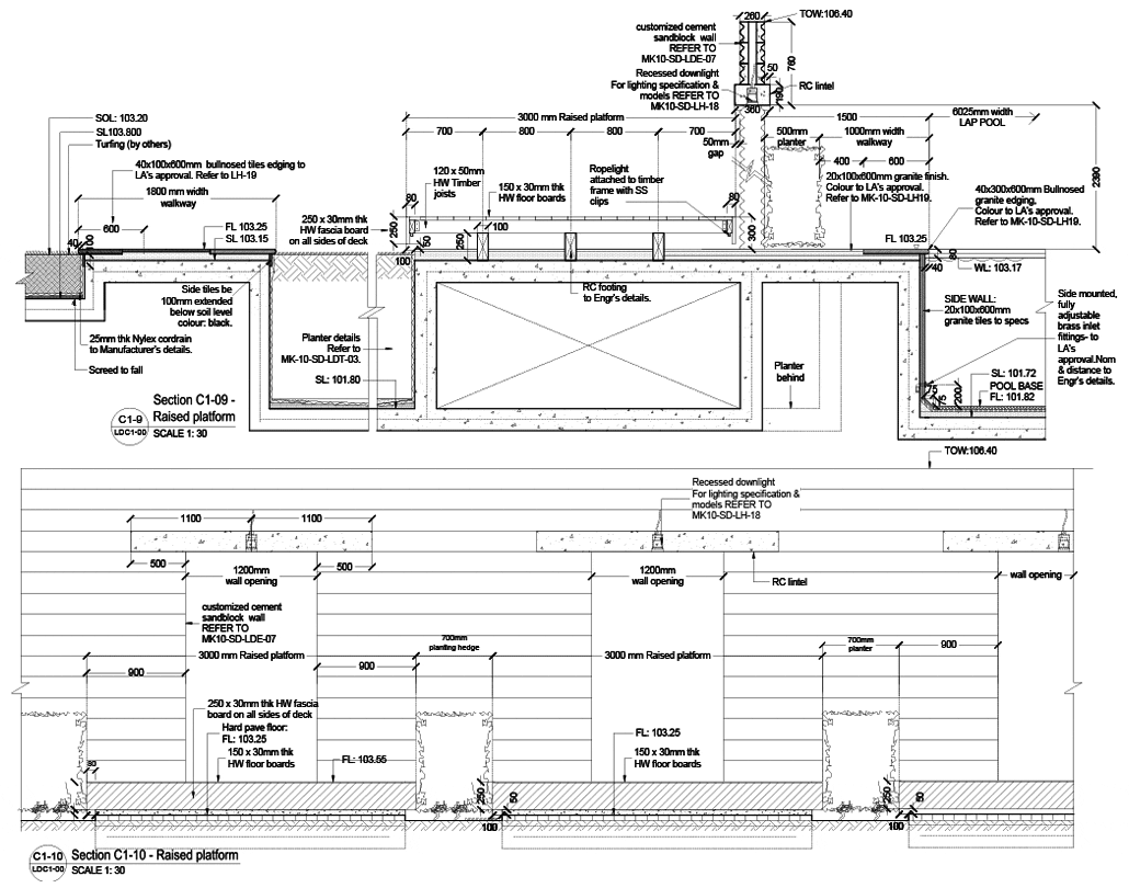
RAISED PLATFORM
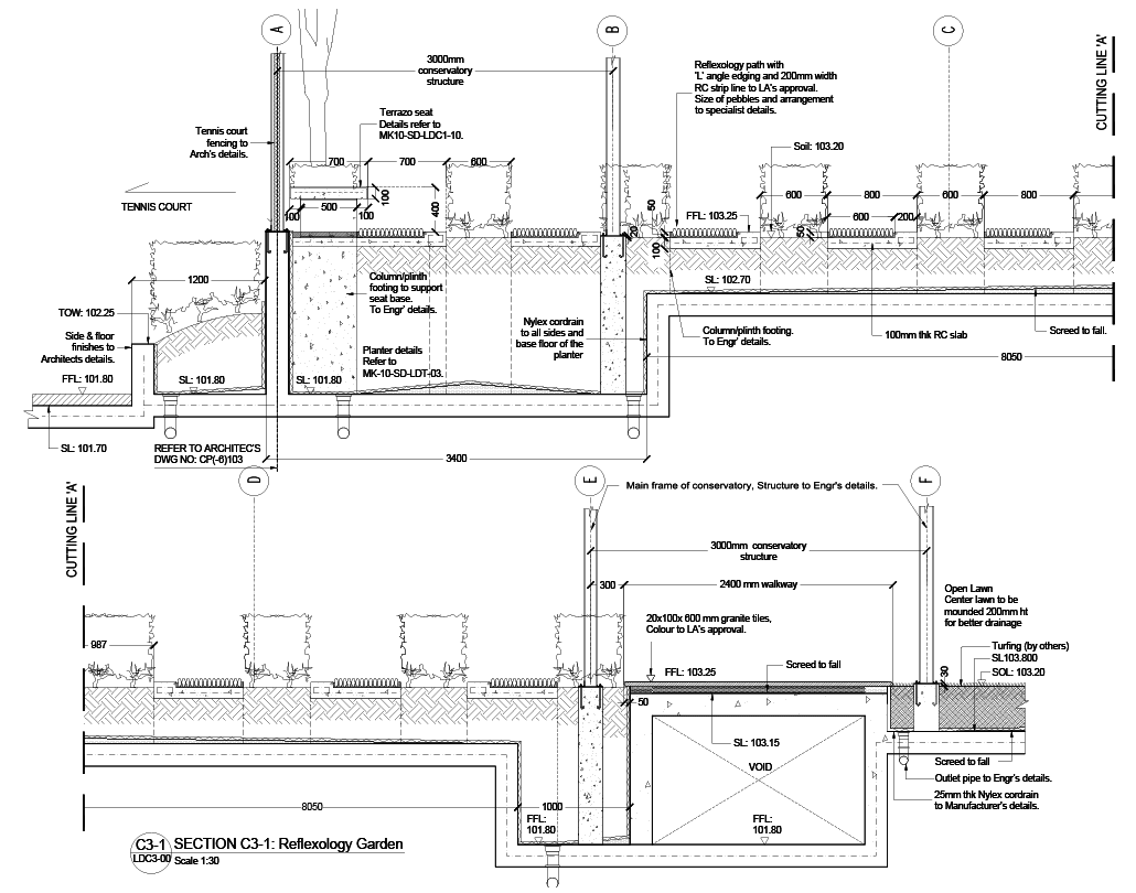
REFLEXOLOGY GARDEN
SCREEN
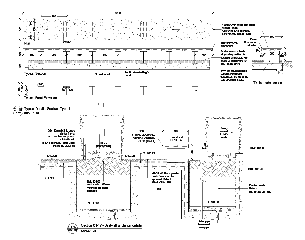
SEAT WALL
SHOWER
SWING
WATER FEATURE